Studio d'Archi
Studio d'Archi
Studio d'Archi
Studio d'Archi
Studio d'Archi
Studio d'Archi
Studio d'Archi
Studio d'Archi
Plan d'aménagement
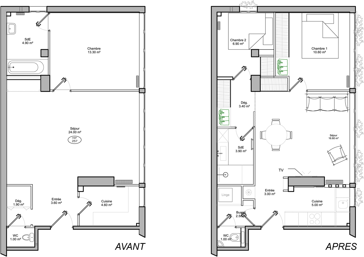
Au moment d’en devenir propriétaire et avant d’y installer son fils étudiant à Paris, notre client nous demande de réorganiser complètement le plan et remettre aux normes tous les équipements. Pour pouvoir rendre visite régulièrement à son fils, il nous demande de trouver la place d’installer une deuxième petite chambre. Il faudra donc (avec deux chambres, c’est indispensable) rendre la salle d’eau indépendante. Il faut aussi prévoir beaucoup de rangements. Tout cela sans perdre trop d’espace dans les pièces à vivre évidemment !
Le plan est rectangulaire, simple, aucun mur porteur, des arrivées et évacuations d’eau à plusieurs endroits, une fenêtre dans chaque pièce. Tout cela est plutôt bon.
Mais il présente tout de même deux contraintes importantes :
La salle d’eau va se décaler vers l’entrée. Pour ne pas l’ouvrir directement sur le séjour, nous créons un dégagement qui donne accès d’un côté à la petite chambre, de l’autre à la salle d’eau. Il est dissimulé derrière des claustras de bois, et se trouve équipé d’une grande penderie.
La cuisine est ouverte sur l’entrée ; le frigo vient se cacher de l’autre côté de l’entrée pour ne pas refermer la pièce et laisser passer la lumière. Entre la cuisine et le séjour (côté fenêtre) nous ouvrons une cloison pour laisser passer les vues.
Surface : 55 m²
Durée des études : 3 mois
Durée du chantier : 3 mois
Cout des travaux : 75 000 € HT
Projet réalisé avec Isabelle MARIE (Decoramine)
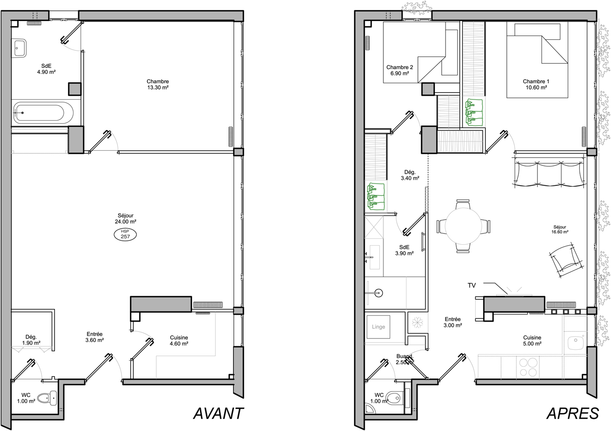
Le plan est rectangulaire, simple, aucun mur porteur, des arrivées et évacuations d’eau à plusieurs endroits, une fenêtre dans chaque pièce. Tout cela est plutôt bon.
Mais il présente tout de même deux contraintes importantes :
- Les très grandes baies vitrées qui s’étirent sur le plus grand côté du rectangle ne nous permettent pas de déplacer les cloisons aussi librement que ce que nous aurions souhaité. La cloison, sur le plan d’origine, entre le séjour et la chambre vient buter sur un trumeau entre les baies vitrées, elle ne pourra pas être déplacée.
- 3 gaines techniques traversent l’appartement au milieu du volume. Il faudra faire avec.
La salle d’eau va se décaler vers l’entrée. Pour ne pas l’ouvrir directement sur le séjour, nous créons un dégagement qui donne accès d’un côté à la petite chambre, de l’autre à la salle d’eau. Il est dissimulé derrière des claustras de bois, et se trouve équipé d’une grande penderie.
La cuisine est ouverte sur l’entrée ; le frigo vient se cacher de l’autre côté de l’entrée pour ne pas refermer la pièce et laisser passer la lumière. Entre la cuisine et le séjour (côté fenêtre) nous ouvrons une cloison pour laisser passer les vues.
Surface : 55 m²
Durée des études : 3 mois
Durée du chantier : 3 mois
Cout des travaux : 75 000 € HT
Projet réalisé avec Isabelle MARIE (Decoramine)
