Pour la rénovation de cet appartement de 67 m² dans le XIII° arrondissement de Paris, nos clients disposaient d’un budget très limité.
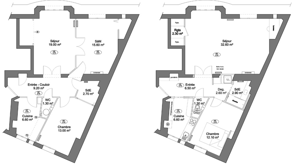
Le projet a donc consisté à conserver l’agencement intérieur actuel de l’appartement en ne modifiant que l’indispensable pour gagner en luminosité, en volume et en rangements : Les deux pièces du séjour sont rassemblées en une (32.60 m²), la mini salle d’eau est agrandie sur la chambre. La cuisine et les WC restent à leur place mais sont totalement modernisés. Tous l’appartement est aussi rénové en électricité, peinture et sols.
Création d'un bureau fonctionnel
Dans l’ancienne salle à manger, se trouvait un placard en biais, difficile à exploiter, mais disposant tout de même d’une fenêtre ( ??). Tout cela est déposé, et ouvert pour installer un coin bureau.
L’entrée/couloir permet de distribuer toutes les pièces en étoile.
Cet espace est utile, mais immense et mal exploité. Côté entrée nous ajoutons un rangement pour accueillir une petite penderie et le tableau électrique. Côté chambre, nous profitons d’un renfoncement dans le mur pour dissimuler dans un placard le lave linge, le ballon d’eau chaude et même la caisse du chat.
La nouvelle salle d’eau est simple mais fonctionnelle.
Un plan maçonné prend le minimum d’espace, la douche à l’italienne est grande et confortable, la porte coulissante à galandage est discrète.
Détails du projet :
Surface : 67 m²
Coût des travaux : 72.000 € HT
Durée des études : 4 mois
Durée du chantier : 4 mois
Ce projet a été réalisé avec Gilles LEFEVRE (Architecte)
Retrouver les photos avant - après de cette rénovation.
Surface : 67 m²
Coût des travaux : 72.000 € HT
Durée des études : 4 mois
Durée du chantier : 4 mois
Ce projet a été réalisé avec Gilles LEFEVRE (Architecte)
Retrouver les photos avant - après de cette rénovation.
