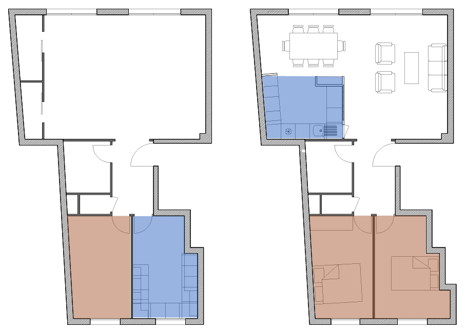
Nous avons entamé la rénovation de cet appartement (électricité, sols, peintures) et nous avons proposé de le réaménager en déplaçant la cuisine dans le séjour pour installer à sa place, une deuxième chambre. Les meubles de la cuisine d’origine étaient de bonne qualité et quasi neufs. Nous avons donc décidé de les démonter et de les réutiliser pour composer la nouvelle cuisine. Mais ces meubles ne sont généralement pas faits pour être démontés : de nombreuses consolidations, adaptation et façonnages ont dû être réalisés. La salle de bains n'a pas été modifiée.
Dans le détail :
Surface : 70 m²
Durée du chantier : 12 semaines
Coût des travaux : 40.000 € HT
Surface : 70 m²
Durée du chantier : 12 semaines
Coût des travaux : 40.000 € HT

