En région parisienne, les propriétaires de cet appartement de 90 m² au dernier étage de leur immeuble, ont l’occasion de récupérer les combles.
Les combles perdus de cet immeuble ne présentent qu’une hauteur au faîtage de 161 cm, à priori pas de quoi installer une vraie pièce à vivre. Nos clients ont pourtant besoin d’un bureau confortable et de rangements fonctionnels pour désengorger l’étage du bas. Ils rêvent aussi d'un aménagement intérieur différent : de volume, de luminaire et d’une terrasse.
Le nouveau projet
Quelques démarches administratives et pas mal de jus de crâne plus tard, nous leur avons proposé ce projet :
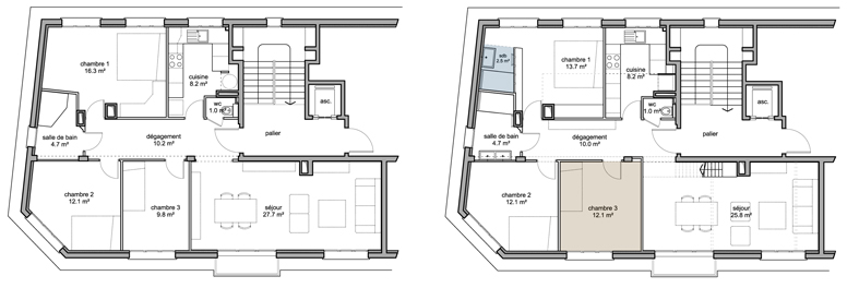
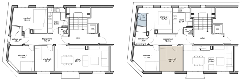
Plan niveau bas
Au niveau bas, pas de grands changements sur le plan (à gauche l'existant, à droite le projet) : nous avons simplement agrandis la chambre 3, celle de la fille (en brun sur le plan de droite), pour qu'elle fasse exactement la même surface que la chambre 2 (celle du fils). Nous avons aussi créé une salle d'eau indépendante dans la chambre des parents (en bleu).
Occupation des combles
Plan des combles
Au-dessus du séjour, les combles seront ouverts pour offrir une belle double hauteur à cette pièce de vie. Par contre, le plancher des combles va être abaissé de 31 cm (comme le montre la coupe) au dessus du couloir et des chambres pour gagner en hauteur dans la partie haute et permettre de se tenir debout. Il a fallu également modifier une des fermes de la charpente (remplacée par un portique métallique) pour libérer l’espace. Nous avons pu ainsi créer 8 m² réellement occupable au niveau haut (loi Carrez) sur les 19 m² récupérés.
Coupe sur le séjour et les combles
La partie la plus basse de la sous-pente de la toiture est occupée d’un côté par des rangements bas. Mais de l’autre côté, elle a été simplement déposée et remplacée par une belle terrasse de 22 m² qui s'ouvre vers une vue dégagée sur l'ouest de Paris.
Le séjour
Le bureau
La terrasse
La nouvelle salle d'eau des parents
Dans le détail :
Durée du chantier : 4 ½ mois.
Coût des travaux : 130.000 €ht
Ce projet a été réalisé avec Gilles LEFEVRE (architecte)
Durée du chantier : 4 ½ mois.
Coût des travaux : 130.000 €ht
Ce projet a été réalisé avec Gilles LEFEVRE (architecte)

