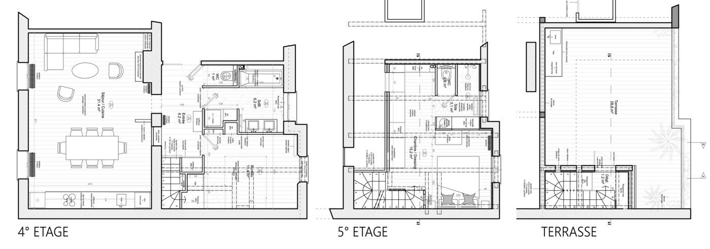
Créer une terrasse sur un immeuble nécessite avant tout, de longues démarches administratives avec la copropriété d'une part et avec le service d'urbanisme de la ville d'autre part.
L'essentiel de l'aménagement consiste ensuite à savoir où et comment nous accédons à la terrasse. L'emplacement de l'escalier est primordial; c'est lui qui donne accès à la terrasse, mais c'est aussi lui qui désorganise l'aménagement de l'étage du dessous.
Dernier point, en fonction de la manière dont est construit le plancher des combles, la position de l'escalier (perpendiculairement ou parallèlement aux solives) peut compliquer le travail de renforcement.
Dans ce projet, l'accès à la terrasse se fait par la suite parental, qui occupe les 20 m² du deuxième niveau de ce duplex. Un escalier étroit (pas plus de 60 cm de passage) et un peu raide, est glissé dans l'ancien dressing (qui est déplacé). Un escalier raide est certes mains confortable à monter et à descendre, mais il prends beaucoup moins de place dans l’aménagement (c’est toujours une question de choix).
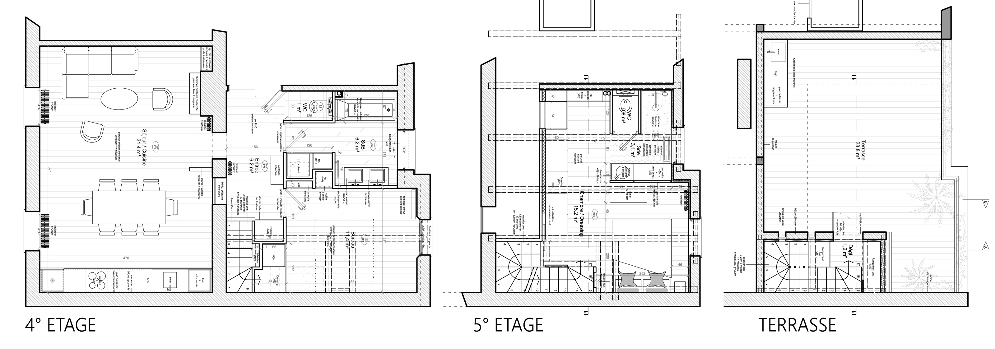
L'essentiel de l'aménagement consiste ensuite à savoir où et comment nous accédons à la terrasse. L'emplacement de l'escalier est primordial; c'est lui qui donne accès à la terrasse, mais c'est aussi lui qui désorganise l'aménagement de l'étage du dessous.
Dernier point, en fonction de la manière dont est construit le plancher des combles, la position de l'escalier (perpendiculairement ou parallèlement aux solives) peut compliquer le travail de renforcement.
Dans ce projet, l'accès à la terrasse se fait par la suite parental, qui occupe les 20 m² du deuxième niveau de ce duplex. Un escalier étroit (pas plus de 60 cm de passage) et un peu raide, est glissé dans l'ancien dressing (qui est déplacé). Un escalier raide est certes mains confortable à monter et à descendre, mais il prends beaucoup moins de place dans l’aménagement (c’est toujours une question de choix).
Dans le détail :
Surface d'origine : 75 m²
Surface de la terrasse : 30 m²
Durée des études : 6 mois
Durée des travaux : 6 mois
Coût des travaux : 147 000 € HT

