Extension et surélévation
La construction ancienne de la cuisine, sans fondations profondes, en matériaux simples, ne permet pas de supporter un étage supplémentaire. Il est donc nécessaire de tout casser pour créer de toutes pièces une nouvelle construction. La cuisine ne doit pourtant pas changer : elle sera donc entièrement déposée, délicatement, pour être ensuite remontée à l’identique.
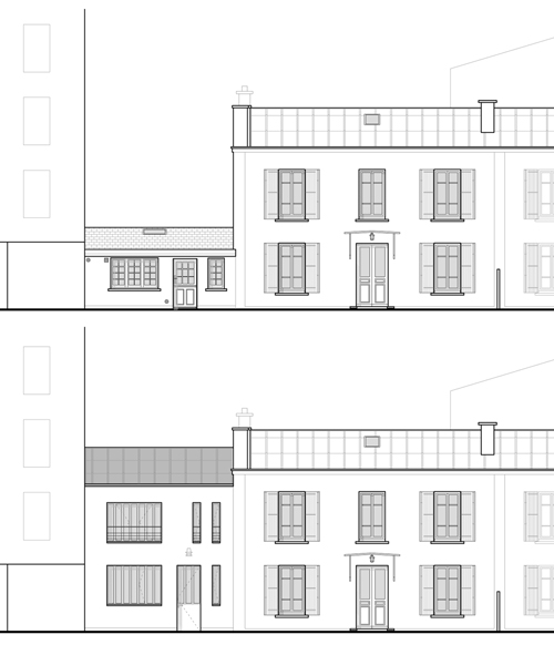
Pour l’extension, nos clients ont souhaité une façade discrète, qui s’accole à la maison existant sans contraste ni étalage . Ainsi, le choix des matériaux : maçonnerie et enduits de façade doit permettre d’insérer la nouvelle construction dans le style de l’ancien bâtiment. Le dessin des fenêtres reprend au rez de jardin, la forme des ouvertures de la cuisine d’origine ; et se duplique à l’étage pour assurer l’éclairage d’une chambre et d’une salle d’eau.
À l’intérieur, la suite parentale s’organise le long d’un grand dressing sur mesure. Elle accueille une chambre de 15 m² et une salle d’eau de 5 m².
Pour l’extension, nos clients ont souhaité une façade discrète, qui s’accole à la maison existant sans contraste ni étalage . Ainsi, le choix des matériaux : maçonnerie et enduits de façade doit permettre d’insérer la nouvelle construction dans le style de l’ancien bâtiment. Le dessin des fenêtres reprend au rez de jardin, la forme des ouvertures de la cuisine d’origine ; et se duplique à l’étage pour assurer l’éclairage d’une chambre et d’une salle d’eau.
À l’intérieur, la suite parentale s’organise le long d’un grand dressing sur mesure. Elle accueille une chambre de 15 m² et une salle d’eau de 5 m².
Terrasse
Entrée de la cuisine
Cuisine
Escalier
Dressing
Salle d'eau
Chambre
Dans le détail :
Durée des études : 7 mois
Durée du chantier : 5 mois
Coût : 150.000 € HT
Chantier réalisé avec Gilles LEFEVRE (architecte)
Durée des études : 7 mois
Durée du chantier : 5 mois
Coût : 150.000 € HT
Chantier réalisé avec Gilles LEFEVRE (architecte)
