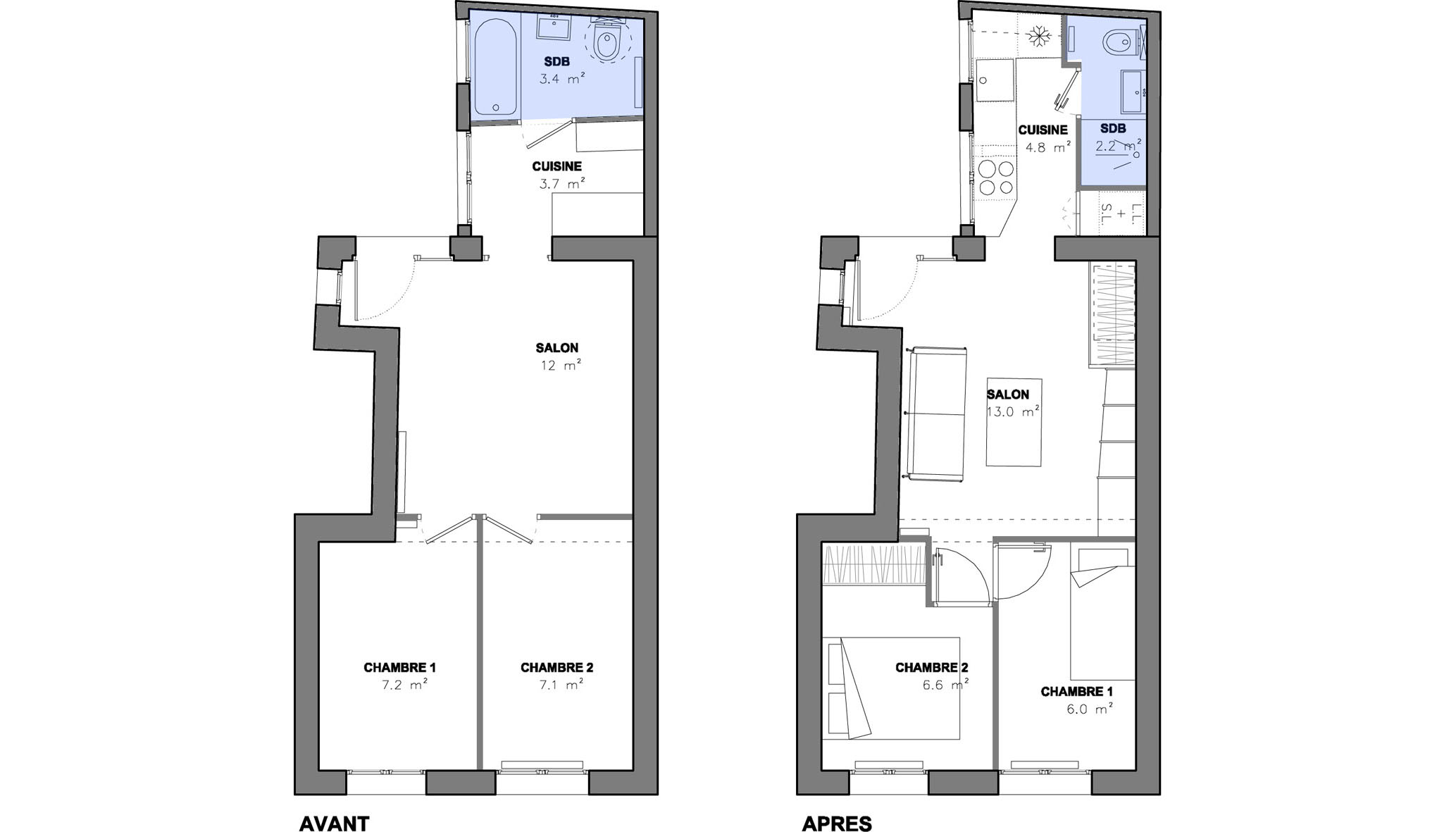
La petite zone disponible pour installer les pièces d'eau est éclairée par deux fenêtres. Il pourrait être tentant, comme c'était le cas dans le plan d'origine, de la séparer en deux pour que chaque pièce dispose d'une fenêtre. Mais pour occuper au maximum l'espace et profiter de chaque centimètre carré, l'option retenue, est d'implanter la cuisine en longueur coté fenêtre et la salle d'eau (aveugle) coté mur.
Une cuisine fonctionelle
Le mot d'ordre de nos clients était de bénéficier avant tout d'une cuisine fonctionnelle. Réduite au strict minimum en terme de rangements et de surface, elle est tout de même suffisamment bien équipée et bien pensée pour lui permettre d'accueillir tous les équipements nécessaires.
Buanderie intégrée
Cet aménagement permet de libérer un placard profond et large pour accueillir un coin buanderie : lave-linge et sèche-linge l'un sur l'autre.
salle d'eau condensée
Nous disposons juste de place nécessaire dans la salle d'eau pour installer le strict minimum mais rien de plus : Douche + vasque + WC + séche serviettes.
Création de rangements dans le séjour
Dans le séjour un meuble de rangement est construit en contreplaqué. Il est fermé par des portes sur la gauche pour dissimuler une penderie en partie basse et le ballon d'eau chaude en partie haute. À droite, nous avons positionné des étagères, certaines ouvertes pour présenter des objets de déco, d'autres fermées pour dissimuler le bazar quotidien. À l'extrême droite, nous installons un coin bureau.
Dans le détail :
Surface : 34 m²
Durée de l'étude : 3 mois
Durée du chantier : 3 mois
Coût des travaux : 56.000 € HT (dont 10.000 € de reprise de toiture et 2.000 € pour le meuble du séjour)
Réalisé avec Lucie Hardelay
Surface : 34 m²
Durée de l'étude : 3 mois
Durée du chantier : 3 mois
Coût des travaux : 56.000 € HT (dont 10.000 € de reprise de toiture et 2.000 € pour le meuble du séjour)
Réalisé avec Lucie Hardelay

