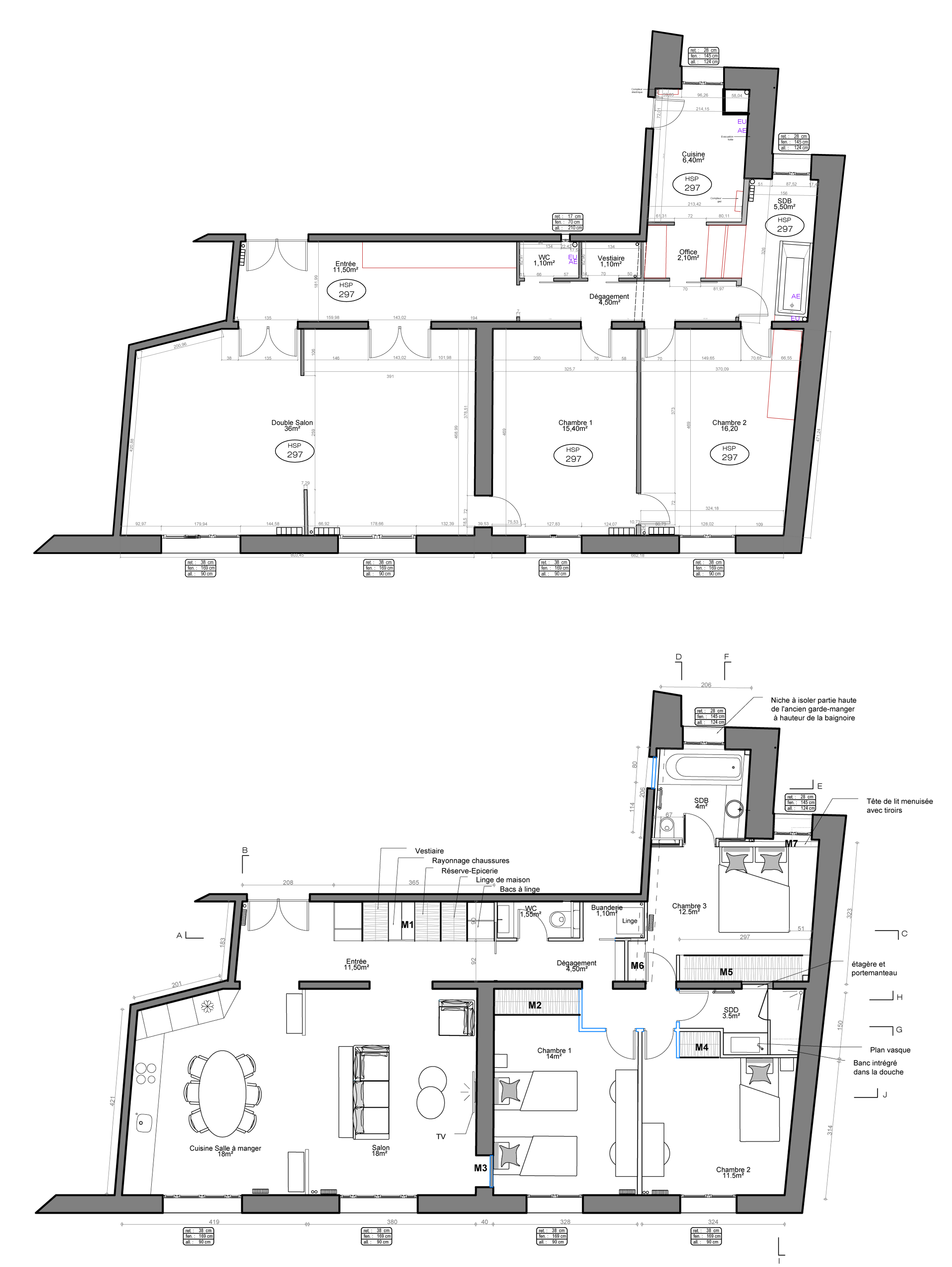
Leur première idée était de couper le séjour en deux pour y installer une petite chambre parentale et un rangement. Mais cet aménagent aurait considérablement réduit le séjour. Nous leur avons alors proposé une option différente : déplacer la cuisine dans le séjour et regrouper toutes les chambres du même côté. Cette organisation a l’avantage de conserver une séparation jour/nuit bien nette, ce qui est plus en accord avec le fonctionnement d’une vie de famille. Lorsque les enfants sont couchés, les parents peuvent profiter du salon, recevoir, écouter de la musique, sans risquer de gêner ou se sentir gênant.
Côté rue, en réduisant un peu les deux chambres d’enfant, (qui passe de 15.40 m² à 14 m² et de 16.20 m² à 11,5 m²) nous récupérons suffisamment de place pour installer une petite salle d’eau « enfants » compacte mais fonctionnelle avec douche à l’italienne. Au sol, le parquet des chambres est peint de couleur claire pour augmenter la luminosité des pièces.
Côté cour, à la place de l’ancienne cuisine et salle de bains, nous installons la chambre supplémentaire qu’il fallait créer : une grande chambre parentale augmentée d’une belle salle de bains. Pour permettre à la lumière de bien circuler dans cette chambre (plutôt sombre puisqu’elle est en rez-de-chaussée), la séparation entre la salle de bains parentale et la chambre sera réalisée par une grande verrière en métal et verre translucide armé grande maille. La lumière circule, mais les vues sont diluées.
Dans cet immeuble bourgeois, le couloir et l’entrée sont immenses, et nous profitons de ces espaces pour installer de nombreux rangements. Toute la menuiserie intérieure (penderies, bibliothèques, rangements) est prévue dans le projet pour s’intégrer parfaitement dans chaque pièce.
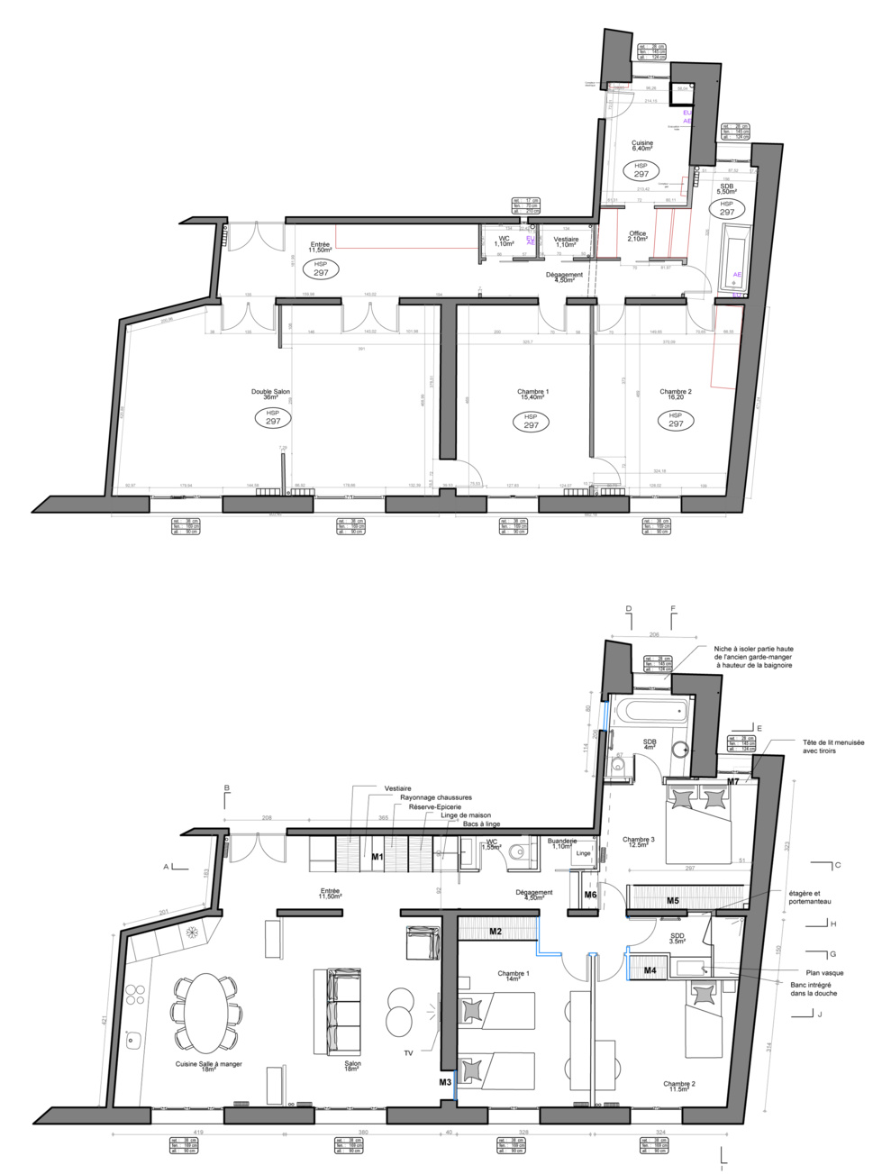
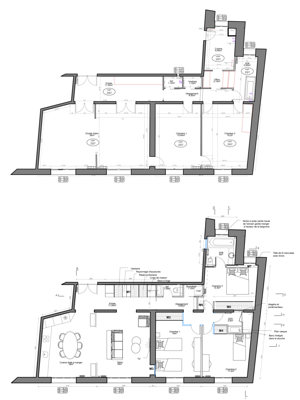
Côté rue, en réduisant un peu les deux chambres d’enfant, (qui passe de 15.40 m² à 14 m² et de 16.20 m² à 11,5 m²) nous récupérons suffisamment de place pour installer une petite salle d’eau « enfants » compacte mais fonctionnelle avec douche à l’italienne. Au sol, le parquet des chambres est peint de couleur claire pour augmenter la luminosité des pièces.
Côté cour, à la place de l’ancienne cuisine et salle de bains, nous installons la chambre supplémentaire qu’il fallait créer : une grande chambre parentale augmentée d’une belle salle de bains. Pour permettre à la lumière de bien circuler dans cette chambre (plutôt sombre puisqu’elle est en rez-de-chaussée), la séparation entre la salle de bains parentale et la chambre sera réalisée par une grande verrière en métal et verre translucide armé grande maille. La lumière circule, mais les vues sont diluées.
Dans cet immeuble bourgeois, le couloir et l’entrée sont immenses, et nous profitons de ces espaces pour installer de nombreux rangements. Toute la menuiserie intérieure (penderies, bibliothèques, rangements) est prévue dans le projet pour s’intégrer parfaitement dans chaque pièce.
Grande entrée et séjour
Salle à manger et séjour
Cuisine
Les chambres d'enfants
La chambre parentale

