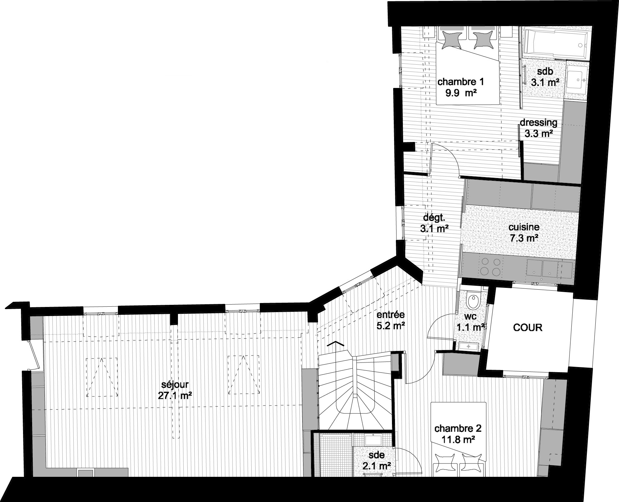
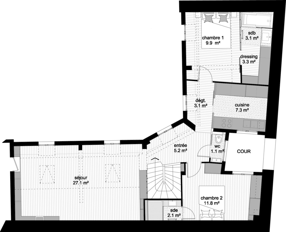
Les attentes de nos clients
Le séjour
Les verrières atelier
La lumière qui éclaire la cuisine, les WC et la chambre 2, vient d’une deuxième arrière cours, très lumineuse car elle n'a quasiment pas de vis-à-vis.
Pour éclairer les zones de passage et laisser circuler la lumière de l'une à l'autre, nous avons déposé la plupart des cloisons au profit de verrières en métal et verre type atelier. Nous en avons positionné entre le séjour et l’entrée, entre la cuisine et le couloir, entre la chambre 1 et la salle de bains. Cela permet à ces pièces de recevoir la lumière de plusieurs directions et de devenir lumineuses et confortables.
L'installation de verrières dans tout l'appartement permet également d’allonger les perspectives d’un bout à l’autre de l’appartement et de donner une impression d’espace.
La chambre parentale
La chambre d'enfant


