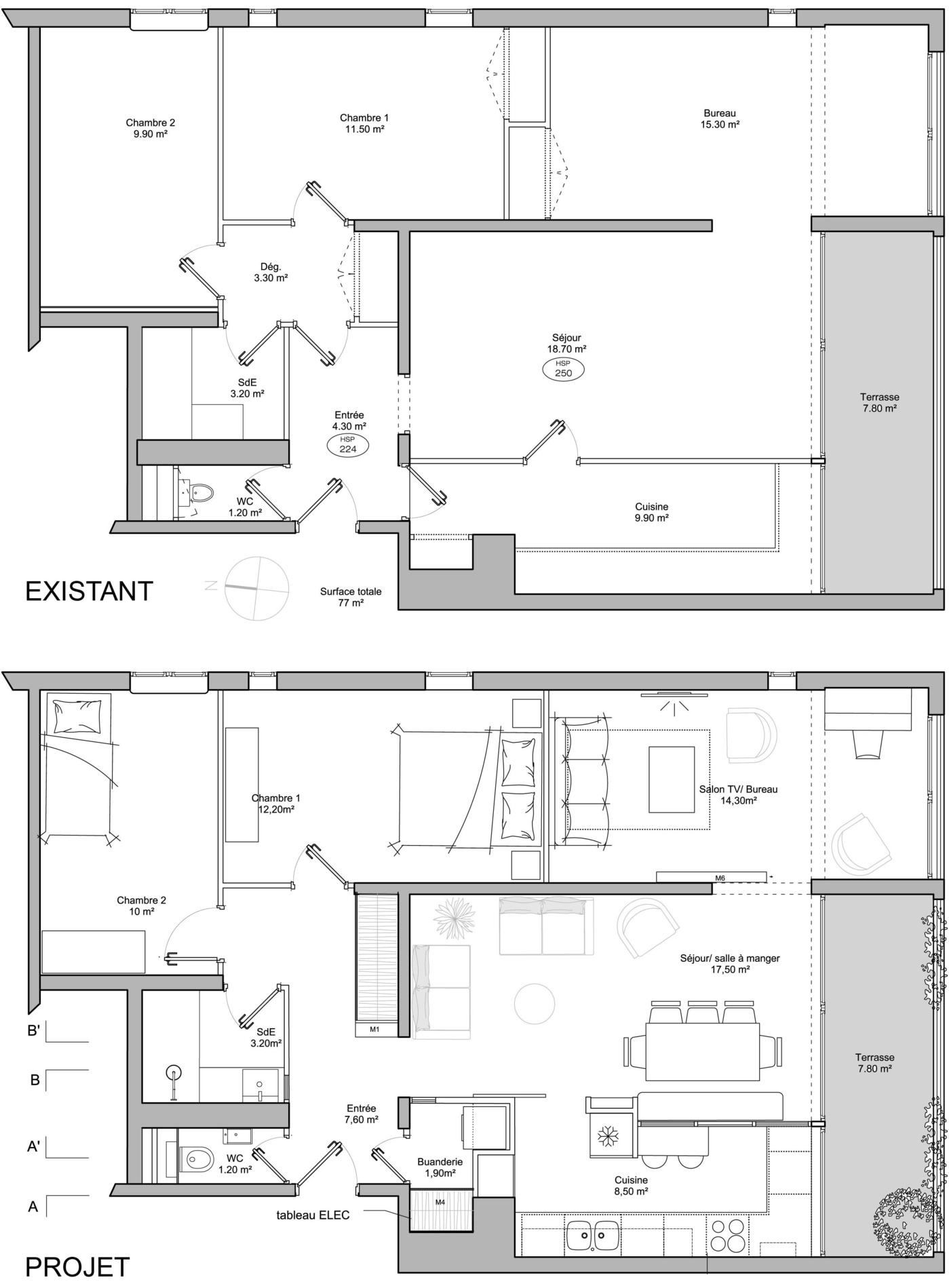
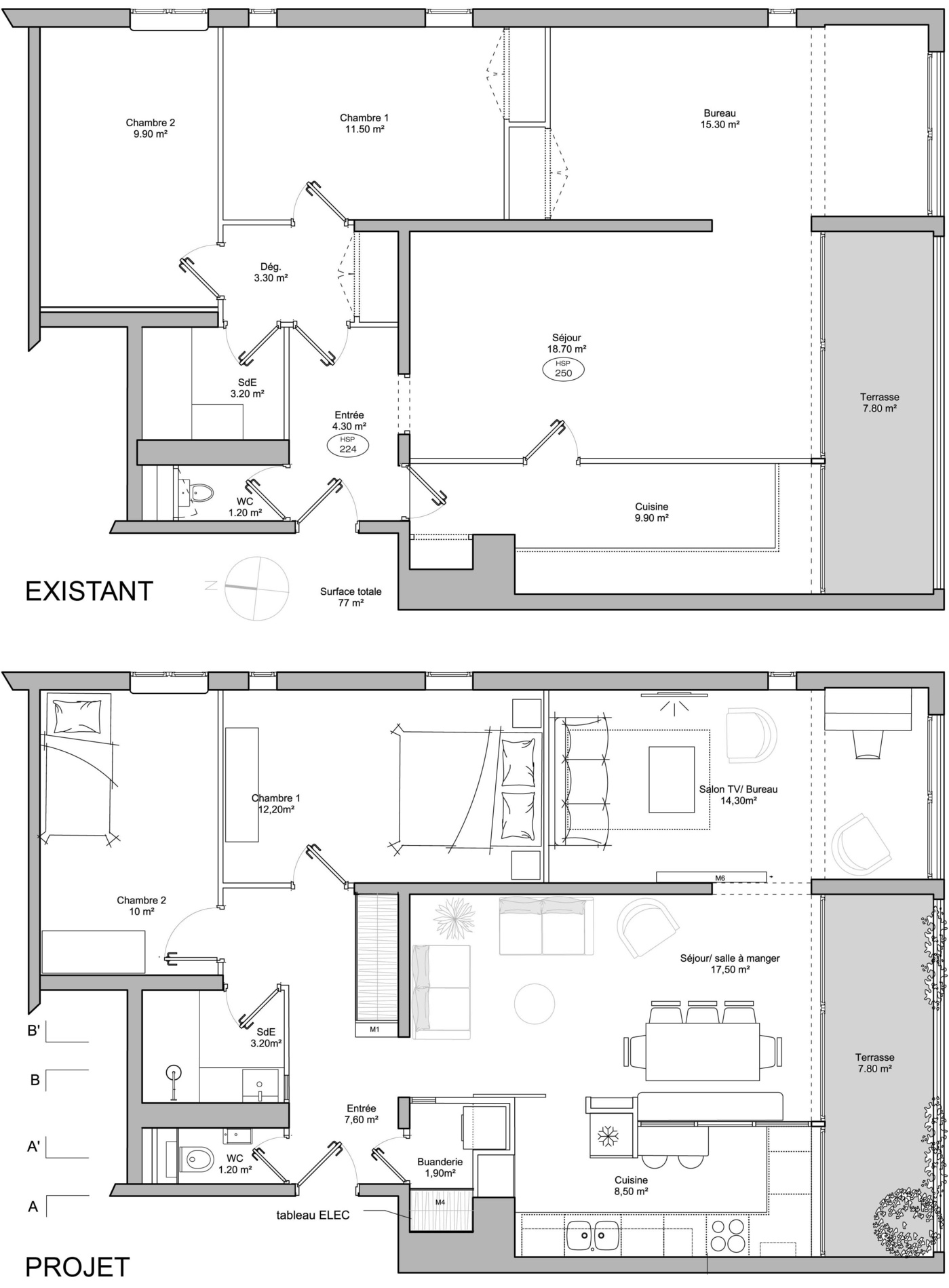
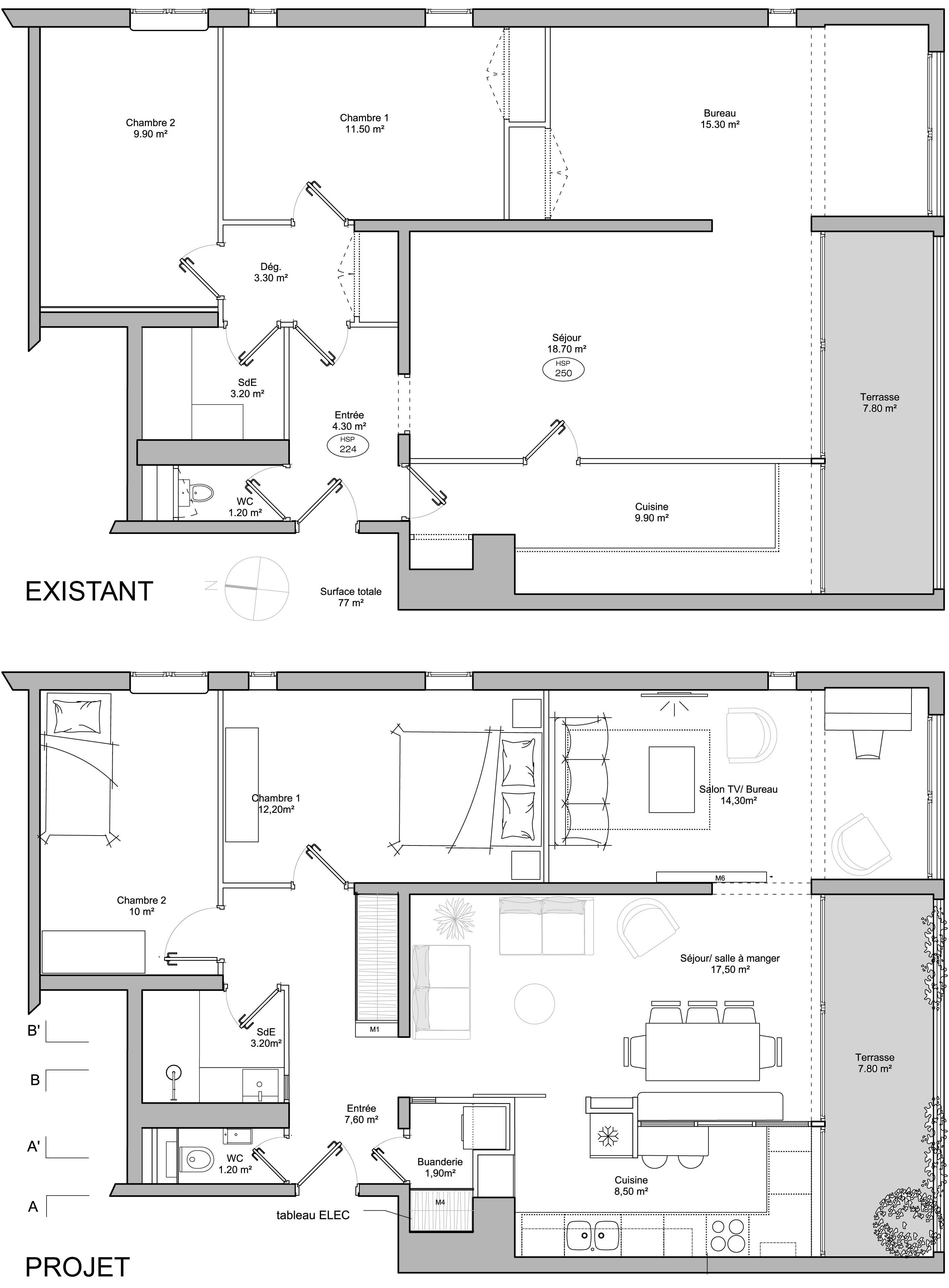
C’est au cœur du 19 eme arrondissement, au pied d’une tour des 15 étages que nous retrouvons nos clients. Ils ont craqué pour un appartement de 77 m², à rénover intégralement. Avant de faire une offre d’achat, ils nous demandent de visiter ce bien immobilier avec eux : le but est de le rendre plus convivial, plus fonctionnel, imaginer ce qu’il est possible de faire et estimer le cout des travaux d’une telle rénovation.
L’ensemble immobilier date des années 1970 et présentes toutes les caractéristiques des appartements de cette époque. Certaines sont plutôt positives (séparation jour/nuit, plusieurs évacuations, beaucoup de lumière…) d’autres sont plutôt des contraintes (cuisine en longueur, beaucoup de portes, faible hauteur sous plafond…). Mais globalement le plan leur convient, la disposition des pièces est rationnelle ; quelques interventions localisées, l’émergence d’un style volontaire et un grand coup de neuf devrait suffire.
L’ensemble immobilier date des années 1970 et présentes toutes les caractéristiques des appartements de cette époque. Certaines sont plutôt positives (séparation jour/nuit, plusieurs évacuations, beaucoup de lumière…) d’autres sont plutôt des contraintes (cuisine en longueur, beaucoup de portes, faible hauteur sous plafond…). Mais globalement le plan leur convient, la disposition des pièces est rationnelle ; quelques interventions localisées, l’émergence d’un style volontaire et un grand coup de neuf devrait suffire.
l'entrée de l'appartement
Nous réunissons l’entrée et le dégagement pour fluidifier la circulation. Nous prolongeons la penderie pour gagner en rangement et aménageons en tête de gondole quelques étagères éclairées pour présenter des objets déco: réalisé en Valchromat bleu et en bois, bois BauBuche multiligne. Ce petit meuble annonce la couleur qui sera reprise dans d’autres pièces de l’appartement jusqu’à devenir un motif.
Le séjour
Pour agrandir la pièce de vie, nous ouvrons la cuisine sur le séjour. La cloison séparative est partiellement remplacée par une paroi vitrée au tracé davantage inspiré du mouvement De Stijl que de l'industriel verrier atelier. Côté séjour un coffre de rangement en Valchromat bleu et des étagères en bois. Côté cuisine une niche pour encastrer le réfrigérateur. Entre les deux : une paroi coulissante surdimensionnée pour réunir les deux pièces.
La cuisine
La cuisine est composée de caissons IKEA, mais pour sortir des modèles trop vus, les façades ont été choisies chez Superfront dans une couleur bleue « de France » mate en raccord avec la menuiserie des autres pièces. Les façades tramées de rectangles et de carrés réguliers sont surlignées par des poignées série LOG.GIC 117 de chez Groël et un plan de travail en granite noir du Zimbabwe.
La buanderie est refermée sur l’entrée (séparée de la cuisine) ce qui permet de gagner en espace de rangement.
La buanderie est refermée sur l’entrée (séparée de la cuisine) ce qui permet de gagner en espace de rangement.
La salle d'eau
Le bureau - chambre d'amis
Le bureau est largement ouvert sur le séjour, mais il doit pouvoir servir de chambre d’amis et donc s’isoler. Nous réalisons alors une longue bibliothèque coulissante en reprenant l’esprit d’une abstraction rigoureuse des lignes pures (sans couleur, dans cette pièce, pour mettre en avant la chaleur du bois).
Les détails de ce projet de rénovation
Surface : 77 m²
Durée des études : 3 mois
Durée du chantier : 3.5 mois
Coût des travaux : 76 600 € HT
Projet réalisé avec Isabelle MARIE de Decoramine
Durée des études : 3 mois
Durée du chantier : 3.5 mois
Coût des travaux : 76 600 € HT
Projet réalisé avec Isabelle MARIE de Decoramine










