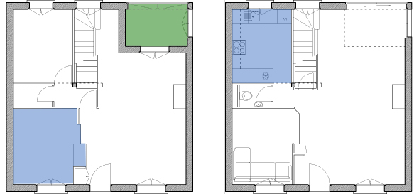
Au rez-de-chaussée, le séjour est encombré d’une loggia maçonnée (en vert sur le plan) ouverte sur le jardin par des baies vitrées. Cet espace n’a pas vraiment de statut dans l’aménagement, il encombre l’espace et réduit la luminosité. La surface qu’il occupe, environ 6 m², serait plus utile au séjour, nous avons donc proposé à nos clients de nous en débarrasser.
Il a fallu dans un premier temps vérifier la nature des murs de la loggia. Avec le concours d’un bureau d’études structure, nous avons pu constater qu’ils n’étaient pas porteurs. Nous avons donc pu la démolir sans difficulté. La pièce est ainsi très lumineuse. Désormais de 30 m², elle gagne une forme et des proportions plus rationnelles ce qui facilitera son aménagement. La cheminée se retrouve au centre de la pièce et la partage parfaitement : un côté salon, un côté salle à manger. L’escalier donne maintenant sur la pièce.
Il a fallu dans un premier temps vérifier la nature des murs de la loggia. Avec le concours d’un bureau d’études structure, nous avons pu constater qu’ils n’étaient pas porteurs. Nous avons donc pu la démolir sans difficulté. La pièce est ainsi très lumineuse. Désormais de 30 m², elle gagne une forme et des proportions plus rationnelles ce qui facilitera son aménagement. La cheminée se retrouve au centre de la pièce et la partage parfaitement : un côté salon, un côté salle à manger. L’escalier donne maintenant sur la pièce.
Le sous-sol est partiellement enterré de près de 2 m côté rue mais d’à peine 1 m côté jardin. Grâce à cela, il bénéficie d’une belle fenêtre et de beaucoup de lumière. Il peut donc être aménagé sans difficultés. Nous avons proposé à nos clients d’y installer une suite parentale (chambre + dressing + salle d’eau) de la manière suivante.
Au premier étage, trois chambres sont refaites à neuf, une vieille salle de bains avec WC est transformée en belle salle de bains familiale avec baignoire + douche + WC + double vasque. Pour gagner un peu de surface, nous avons rogné légèrement la penderie qui se trouvait dans la chambre voisine et qui était très profonde (en haut sur le plan). Cela nous permet d’installer une grande douche de 120×80, et de disposer de suffisamment de place pour installer encore une double vasque et une baignoire.
Nous avons ensuite occupé la zone en sous-pente, celle où l’on ne se tient pas debout, pour placer notre baignoire. Il reste suffisamment de hauteur pour se tenir assis confortablement à l’intérieur. L’ancien petit rangement rustique est supprimé et aménagé en plage carrelée pour entasser les jouets flottants des enfants.
Les WC restent où ils sont mais sont remplacés par un modèle suspendu dont le bâti-support est dissimulé dans le volume perdu de la sous-pente. Sa position est calculée pour que l’on puisse se tenir debout devant la cuvette. Pas plus.
L’espace entre la douche et la baignoire permet ainsi de placer un meuble et une double vasque (120 cm).
Nous avons ensuite occupé la zone en sous-pente, celle où l’on ne se tient pas debout, pour placer notre baignoire. Il reste suffisamment de hauteur pour se tenir assis confortablement à l’intérieur. L’ancien petit rangement rustique est supprimé et aménagé en plage carrelée pour entasser les jouets flottants des enfants.
Les WC restent où ils sont mais sont remplacés par un modèle suspendu dont le bâti-support est dissimulé dans le volume perdu de la sous-pente. Sa position est calculée pour que l’on puisse se tenir debout devant la cuvette. Pas plus.
L’espace entre la douche et la baignoire permet ainsi de placer un meuble et une double vasque (120 cm).
Dans le détail :
Surface : 110 m²
Durée du chantier : 5 mois
Coût des travaux : 90.000 € HT
Surface : 110 m²
Durée du chantier : 5 mois
Coût des travaux : 90.000 € HT










