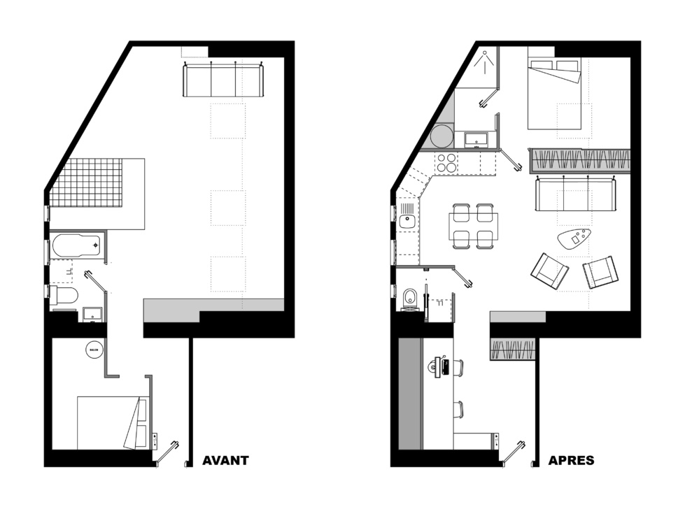
Avec ses 40 m² (un peu moins en loi Carrez) ce deux pièces pourrait être parfaitement fonctionnel. Mais il ne l'est pas, car l'organisation, la disposition et la taille des pièces ne permettent pas un aménagement fonctionnel : la chambre est étriquée, la salle d'eau minuscule, la cuisine pas très pratique; et le séjour finalement trop grand.
Lorsqu'ils nous appellent pour rénover cette surface, nos clients ont l'intention d'en faire un pied-à-terre parisien optimisé et fonctionnel. Ils ont besoin d'une vraie chambre, d'une cuisine confortable et d'un coin bureau.
Pour répondre à leurs attentes, nous avons recréé une petite chambre au fond de la surface : le lit, juste ce qu'il faut pour tourner autour et beaucoup de rangements. La salle d'eau attenante accueille une grande douche à l'italienne, une vasque et quelques rangements. Nous avons profité de ces rangements pour englober le mur incliné, toujours problématique dans un aménagement.
La cuisine reste quasiment à son emplacement d'origine, mais elle est complètement retournée pour s'ouvrir sur le séjour (et non plus refermée par un bar comme précédemment). En disposant les meubles contre les murs, nous occupons la périphérie de la surface. Cela permet de libérer l'espace au milieu, de rendre les déplacements plus fluides et de donner l'impression que la pièce est plus grande. La cuisine est éclairée par deux petites fenêtres hautes, le séjour par deux grands Velux, mais la lumière circule dans tout ce volume.
Problème: les WC ne pouvaient pas être déplacés (ou peu). Ils restent donc où ils sont, mais pour ne pas s'ouvrir directement dans le séjour, nous avons créé un sas avec deux portes (une porte battante et une porte coulissante) en plaçant le coin buanderie au milieu. Cela permet de les isoler (phoniquement) et de les faire oublier.
L'entrée de l'appartement est consacrée au coin bureau. Un grand plan libre et flexible, juste éclairé par un velux. Quelques rangements supplémentaires complètent l'ensemble.
Lorsqu'ils nous appellent pour rénover cette surface, nos clients ont l'intention d'en faire un pied-à-terre parisien optimisé et fonctionnel. Ils ont besoin d'une vraie chambre, d'une cuisine confortable et d'un coin bureau.
Pour répondre à leurs attentes, nous avons recréé une petite chambre au fond de la surface : le lit, juste ce qu'il faut pour tourner autour et beaucoup de rangements. La salle d'eau attenante accueille une grande douche à l'italienne, une vasque et quelques rangements. Nous avons profité de ces rangements pour englober le mur incliné, toujours problématique dans un aménagement.
La cuisine reste quasiment à son emplacement d'origine, mais elle est complètement retournée pour s'ouvrir sur le séjour (et non plus refermée par un bar comme précédemment). En disposant les meubles contre les murs, nous occupons la périphérie de la surface. Cela permet de libérer l'espace au milieu, de rendre les déplacements plus fluides et de donner l'impression que la pièce est plus grande. La cuisine est éclairée par deux petites fenêtres hautes, le séjour par deux grands Velux, mais la lumière circule dans tout ce volume.
Problème: les WC ne pouvaient pas être déplacés (ou peu). Ils restent donc où ils sont, mais pour ne pas s'ouvrir directement dans le séjour, nous avons créé un sas avec deux portes (une porte battante et une porte coulissante) en plaçant le coin buanderie au milieu. Cela permet de les isoler (phoniquement) et de les faire oublier.
L'entrée de l'appartement est consacrée au coin bureau. Un grand plan libre et flexible, juste éclairé par un velux. Quelques rangements supplémentaires complètent l'ensemble.
Séjour et cuisine
Cuisine depuis l'entrée
Cuisine


