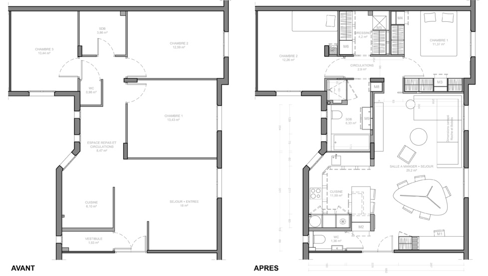
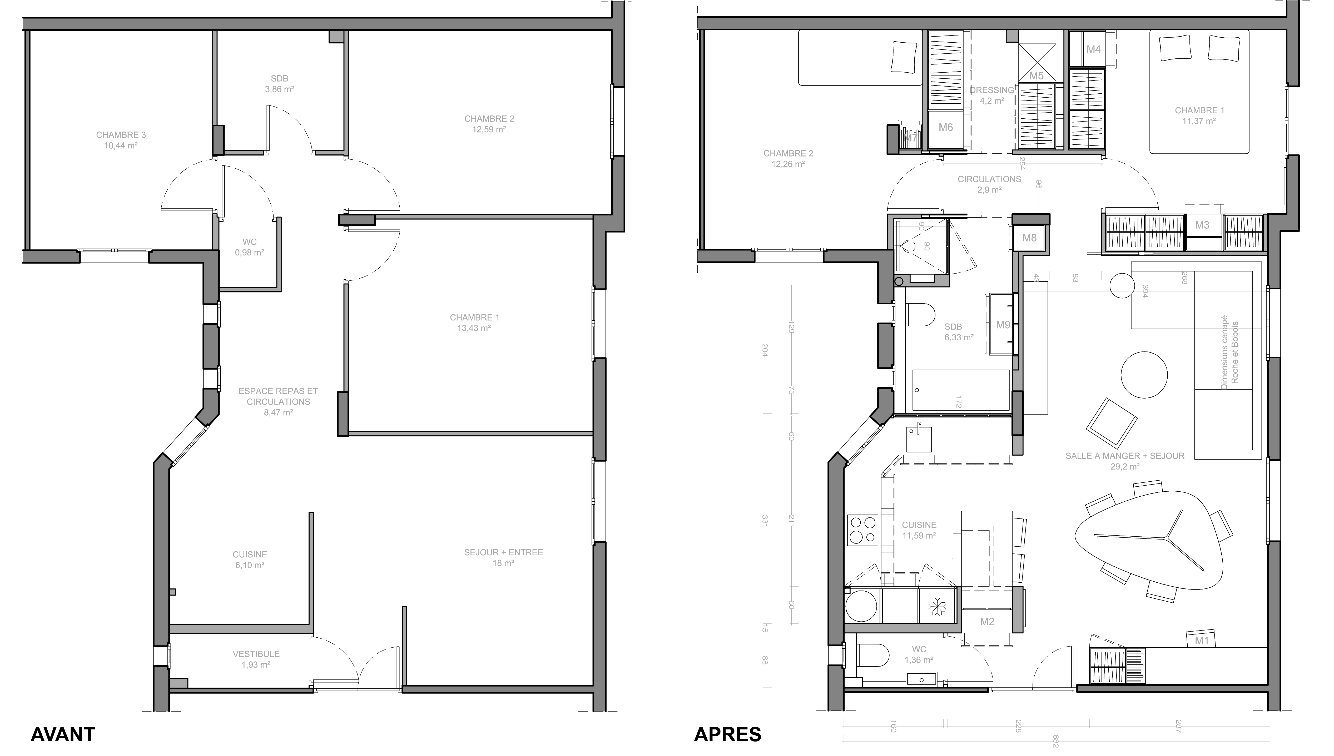
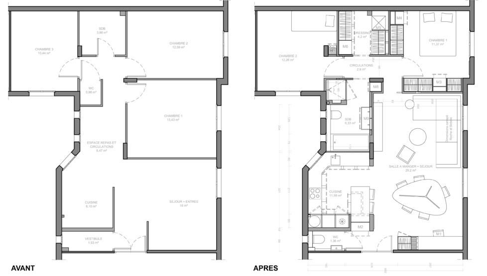
Dans son aménagement actuel, cet appartement dispose de 3 chambres. Il aurait surement été remanié plusieurs fois : le séjour réduit à 18 m² pour créer une chambre. Les pièces d’eau ont été déplacées de sorte qu’aujourd’hui un trop grand couloir, éclairé, mais mal pratique consomme des mètres carrés inutilement.
Avant de l’acheter, nos clients nous ont demandé s’il était possible de revoir ce plan et de retransformer en 3 pièces (avec deux chambres). Mais surtout quelles solutions nous proposions pour pallier son manque de luminosité. C’est là un frein important dans leur prise de décision avant de se décider pour faire une offre. Situé au premier étage d’un immeuble de 8 niveaux, donnant de part et d’autre sur deux cours intérieures, le manque de lumière est un véritable problème.
Dans notre aménagement, nous avons proposé de faire la part belle aux pièces de vie. Le séjour va retrouver sa taille d’origine avec presque 30 m² et deux grandes fenêtres. Nous ouvrons largement la cuisine sur la zone salle à manger afin de profiter de la double orientation et faire circuler la lumière.
Nous réduisons la taille de la chambre parentale à son strict minimum, en y ajoutant de très nombreux rangements. La chambre d’enfant, par contre, sera un peu agrandie en prévision. Entre les deux chambres, dans une zone totalement aveugle, nous plaçons un dressing buanderie (à la place de l’ancienne salle d’eau).
Il nous reste deux fenêtres hautes que nous consacrons à une grande salle de bains familiale avec douche et baignoire. Entre la salle de bains et la cuisine, la cloison sera montée en métal laqué blanc et verre pour que la lumière passe d’une pièce à l’autre. Une autre verrière dans le même style relie la cuisine de l’entrée, pour les mêmes raisons, mais aussi pour créer une perspective agréable en entrant dans l’appartement.
Avant de l’acheter, nos clients nous ont demandé s’il était possible de revoir ce plan et de retransformer en 3 pièces (avec deux chambres). Mais surtout quelles solutions nous proposions pour pallier son manque de luminosité. C’est là un frein important dans leur prise de décision avant de se décider pour faire une offre. Situé au premier étage d’un immeuble de 8 niveaux, donnant de part et d’autre sur deux cours intérieures, le manque de lumière est un véritable problème.
Dans notre aménagement, nous avons proposé de faire la part belle aux pièces de vie. Le séjour va retrouver sa taille d’origine avec presque 30 m² et deux grandes fenêtres. Nous ouvrons largement la cuisine sur la zone salle à manger afin de profiter de la double orientation et faire circuler la lumière.
Nous réduisons la taille de la chambre parentale à son strict minimum, en y ajoutant de très nombreux rangements. La chambre d’enfant, par contre, sera un peu agrandie en prévision. Entre les deux chambres, dans une zone totalement aveugle, nous plaçons un dressing buanderie (à la place de l’ancienne salle d’eau).
Il nous reste deux fenêtres hautes que nous consacrons à une grande salle de bains familiale avec douche et baignoire. Entre la salle de bains et la cuisine, la cloison sera montée en métal laqué blanc et verre pour que la lumière passe d’une pièce à l’autre. Une autre verrière dans le même style relie la cuisine de l’entrée, pour les mêmes raisons, mais aussi pour créer une perspective agréable en entrant dans l’appartement.
Cuisine
Séjour
Bureau
Chambre
Salle de bains
Le projet en détail :
Surface : 76 m².
Durée des études : 3 mois
Durée du chantier : 4 mois
coût des travaux : 96 000 €HT
Ce projet à été réalisé avec Alexandre DUBREUIL
Surface : 76 m².
Durée des études : 3 mois
Durée du chantier : 4 mois
coût des travaux : 96 000 €HT
Ce projet à été réalisé avec Alexandre DUBREUIL

