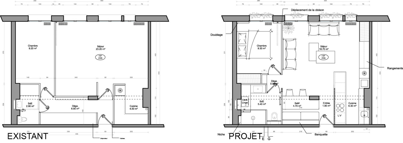
Le plan d'origine
Sur le plan d’origine, l’entrée se fait par un long couloir qui sert aussi de dressing et qui conduit d’un côté vers le séjour, et de l’autre à la chambre et la salle d’eau. La chambre d’à peine 9 m² est trop étroite pour pouvoir y installer un lit autrement que dans un angle. Dans un recoin aveugle du séjour, prends place une petite cuisine. Il n’y a qu’une seule contrainte technique : un voile béton entre l’entrée et le séjour qu’il est nécessaire de conserver.
L’appartement est mono orienté, Sud-ouest, mais bénéficie d’une magnifique vue sur tout Paris. Notre client souhaite bénéficier d’un appartement mieux optimisé, avec moins de couloir, beaucoup de rangement et le moins possible de séparation pour mettre en valeur la vue.
L’appartement est mono orienté, Sud-ouest, mais bénéficie d’une magnifique vue sur tout Paris. Notre client souhaite bénéficier d’un appartement mieux optimisé, avec moins de couloir, beaucoup de rangement et le moins possible de séparation pour mettre en valeur la vue.
Notre projet
Dans notre aménagement, nous proposons de créer dès l’entrée de l’appartement, un grand volume qui réunit séjour, cuisine, coin salle à manger et entrée. Cette pièce sera carrée et lumineuse. Décloisonner permet de profiter de la vue depuis toutes les pièces de réception. Pour isoler tout de même un peu l’entrée du reste de la pièce, nous installons le long de la cuisine une grande cloison de claustras de bois.
Tout de suite à gauche de l’entrée, l’ancien couloir/dressing, nous offre tout juste la place dont nous avons besoin pour installer un coin salle à manger avec table fixe et une banquette façon brasserie.
Depuis le séjour un petit dégagement d’à peine un mètre carré permet d’accéder d’un côté à la chambre et de l’autre à la salle d’eau. Pour faciliter l’aménagement de la chambre, nous avons décalé la cloison chambre/séjour de 30 cm pour permettre de placer un lit et de tourner autour. Nous réservons aussi la place pour une grande penderie.
La salle d’eau/WC de 5 m² est réduite, mais nous trouvons tout de même la place d’y glisser une grande douche à l’italienne, un plan vasque et un meuble buanderie.
Pour suivre le style de construction de l’immeuble, nous avons gardé dans le séjour le parquet à damier typique de cette époque. Dans le même esprit, le client a choisi pour la cuisine des carreaux de terrazzo gris et blanc qui revient à la mode actuellement. Pour adoucir l’aspect trop minéral, nous avons opté pour des claustras de chêne entre la cuisine et l’entrée avec un rappel dans le dégagement. Les meubles ont été réalisés sur mesure en Mdf peint et plateau chêne en rappel des claustras.
Retrouvez ici la vidéo de cette rénovation.
Tout de suite à gauche de l’entrée, l’ancien couloir/dressing, nous offre tout juste la place dont nous avons besoin pour installer un coin salle à manger avec table fixe et une banquette façon brasserie.
Depuis le séjour un petit dégagement d’à peine un mètre carré permet d’accéder d’un côté à la chambre et de l’autre à la salle d’eau. Pour faciliter l’aménagement de la chambre, nous avons décalé la cloison chambre/séjour de 30 cm pour permettre de placer un lit et de tourner autour. Nous réservons aussi la place pour une grande penderie.
La salle d’eau/WC de 5 m² est réduite, mais nous trouvons tout de même la place d’y glisser une grande douche à l’italienne, un plan vasque et un meuble buanderie.
Pour suivre le style de construction de l’immeuble, nous avons gardé dans le séjour le parquet à damier typique de cette époque. Dans le même esprit, le client a choisi pour la cuisine des carreaux de terrazzo gris et blanc qui revient à la mode actuellement. Pour adoucir l’aspect trop minéral, nous avons opté pour des claustras de chêne entre la cuisine et l’entrée avec un rappel dans le dégagement. Les meubles ont été réalisés sur mesure en Mdf peint et plateau chêne en rappel des claustras.
Retrouvez ici la vidéo de cette rénovation.

